福岡市早良区原8丁目 4号地
- ■販売価格:
- 4,590万円
- ■延床面積:
- 77.72㎡(23.51坪)
- ■土地面積:
- 107.26㎡(32.44坪)
- ■交通情報:
- 地下鉄七隈線「賀茂」歩17分 1,300m、地下鉄七隈線「次郎丸」歩17分 、 地下鉄七隈線「野芥」歩22分
360viewでLDKを見る
特徴ピックアップ
■BELS/省エネ基準適合認定書あり。
■プライベートな時間を快適に過ごせる、高気密高断熱住宅です。
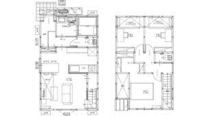
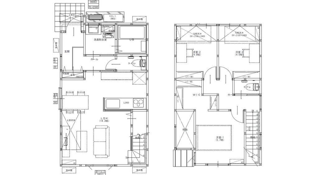
■LDKは約14.3帖。一部が上部吹抜けで、2階部分とシームレスにつながります。
■IHクッキングヒーターが採用されており、夏場の調理でも暑さを感じにくいです。
■リビング階段仕様につき、ご家族とコミュニケーションをとりやすい設計。
■浴室乾燥機・温水洗浄便座など、暮らしに役立つ設備あり。
■WIC付きで、ご家族の衣類や生活雑貨をすっきりと収納可能です。
■第一種低層住居専用地域内に位置しています。
■周辺環境
・サニー星の原店 徒歩9分
・福岡市立原西小学校 徒歩8分
BELS/省エネ基準適合認定書あり / 高気密高断熱住宅 / 駐車2台可 / 省エネ給湯器 / スーパー 徒歩10分以内 / 浴室乾燥機 / 陽当り良好 / 駅まで平坦 / シャワー付洗面化粧台 / 対面式キッチン / トイレ2ヶ所 / 浴室1坪以上 / 2階建 / 温水洗浄便座 / 吹抜け / TVモニタ付インターホン / ウォークインクローゼット / IHクッキングヒーター / リビング階段 / 小学校 徒歩10分以内 / 平坦地 / 周辺交通量少なめ / オール電化
早良区の住みやすさとは?
『早良区』でお家をお探しの方必見!
住みやすさや県内屈指の文教エリア早良区を解説しています。
是非こちらをご一読ください。
ネクストの家を知る
<実際の建物で知る>
モデルハウスや見学可能物件をご確認ください。
→モデルハウス
<画像で知る>
施工事例をご確認ください。
→施工事例
<動画で知る>
ルームツアーを公式YouTubeチャンネルよりご覧いただけます。
→ネクストの家オフィシャルYouTube
<資料やスタッフから知る>
専用フォームよりお申し込みください。
→お問合せ・資料請求
株式会社アバンティア不動産 福岡営業所
住所:福岡県福岡市城南区長尾4丁目18-9
TEL:0120-34-3403
所属団体:(公社)全日本不動産協会会員、九州不動産公正取引協議会加盟
宅地建物取引業免許:国土交通大臣免許(1)第10901号
詳細情報
基本情報
- 所在地
- 福岡市早良区原8丁目 4号地
- 販売価格
- 4,590万円
- 土地面積
- 107.26㎡(32.44坪)
- 延床面積
- 77.72㎡(23.51坪)
- 間取り
- 3LDK
- 構造・工法
- 木造2階建(軸組工法)
- 設備
- 公営水道、本下水、九州電力、オール電化
- 完成時期(築年月)
- 2026年6月予定
- 入居時期
- 相談
- 私道負担・道路
- 道路幅:4.3m~5.7m、アスファルト舗装、1号地:北側幅員5.4m 2~4号地:西側幅員4.3m
- 建ぺい率
- 50%
- 容積率
- 80%
- 用途地域
- 1種低層
- 地目
- 宅地
- 土地の権利形態
- 所有権
- 建築確認番号
- 第R07確認建築福住セ本01093号他
- 取引形態
- 売主
- 販売戸数
- 1戸
- 総戸数
- 5戸
- 情報登録日
- 2026年2月28日
- 次回更新日
- 2週間毎を目安に更新
施工
その他制限事項
NEXTの家の基本仕様についてはこちらから
NEXTの家の基本仕様アクセス
地下鉄七隈線「賀茂」歩17分 1,300m
地下鉄七隈線「次郎丸」歩17分
地下鉄七隈線「野芥」歩22分
【スーパー】サニー星の原店:徒歩9分(684m)
【 ドラッグストア】ココカラファイン原店:徒歩10分(722m)
【ショッピングセンター】イオン原店:徒歩10分(758m)
【幼稚園・保育園】社会福祉法人白ゆり会 アン・シャーリーこども園:徒歩5分(369m)
【幼稚園・保育園】学校法人松愛学園 ありた幼稚園:徒歩6分(440m)
【小学校】福岡市立原西小学校:徒歩8分(617m)
【中学校】福岡市立西福岡中学校:徒歩14分(1062m)















